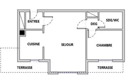
Vente appartement 2 pièces 39 m² Antibes


Appartement 2 pièces Antibes

achat appartement 39 m² Centre-ville


Antibes Secteur Fontonne
Appartement 2 Pièces à rénover, en dernier étage avec vue dégagée 
Au Calme dans Résidence proche des commerces 
Il est proposé à vente avec une cave

1 chambre 1 chambre
2 terrasses 2 terrasses
1 salle de bain 1 salle de bain
1 toilette 1 toilette
1 cave 1 cave

Prestations

  • Ascenseur
  • Calme
  • Résidentiel

Caracteristiques

  • Surface séjour : 15 m²
  • Exposition : Ouest
  • Vue : Dégagée
  • Eau chaude : Individuelle
  • État intérieur : A rénover
  • Standing : Résidentiel
  • État immeuble : Bon

Informations légales

  • 186 000 €
    Honoraires à la charge du vendeur, bien en copropriété, charges courantes annuelles 1 296 € (108 € par mois), aucune procédure en cours, les informations sur les risques auxquels ce bien est exposé sont disponibles sur  georisques.gouv.fr, notre barème de prix est consultable ici
INFOS PRATIQUES

Biens similaires